Page suivante
Page précédente
Bornel (60540)

Maison 6 pièce(s) 4 chambre(s) 101 m²

1
1
524 m²
Réf VM2724
Dans un village au calme avec écoles sur place, à 7 minutes de Bornel avec accès direct sur la D1001 ( Paris- Beauvais ) et à 10 minutes de Chambly . Je vous propose cette maison neuve dans un environnement au calme de 6 pièces d'une surface de 101 m2 qui est composée comme suit : Au rez-de-chaussée, entrée sur séjour, salle à manger donnant sur une cuisine ouverte ,cellier , WC indépendant , salle de bains et une chambre . A l'étage, vous trouverez 3 chambres ainsi qu'une salle d'eau avec WC . A finir d'aménager: il vous restera à choisir et à installer votre cuisine ainsi que les meubles de salle de bains, et les revêtements des murs et des sols . Le tout sur une parcelle de 524 m2 sur cave partielle. Maison livrée courant mai, plomberie et électricité sont déjà réalisées. Les aménagements extérieurs seront à finir à votre guise . Ses atouts : Garantie décennale, pompe à chaleur et chauffage au sol. Avec cette maison vous aurez l'avantage du neuf sans attente et vous pourrez l'aménager selon vos envies et besoins. Soyez réactifs pour ce bien rare sur le marché. D'autres photos disponible en me contactant, à vos téléphones !!!

Bilan énergétique

Diagnostics énergetiques
A propos de ce bien Caractéristiques de ce bien
  • Surface 101 m²
  • terrain 524 m²
  • séjour 40 m²
  • 4 chambre(s)
  • 1 salle(s) de bain
  • 1 salle(s) d'eau
  • construit en 2022
  • Chauffage autre : autre (pompe à chaleur)
  • 3 niveau(x)
  • cave

Composition

Composition de ce bien

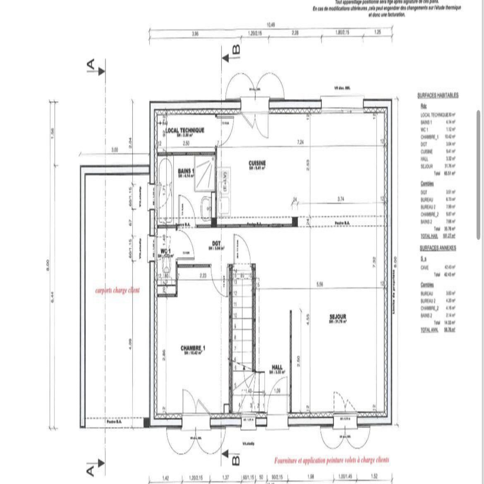
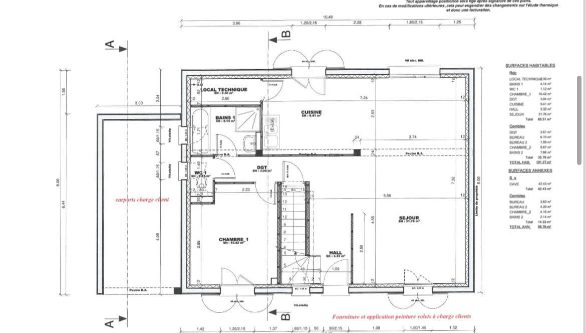
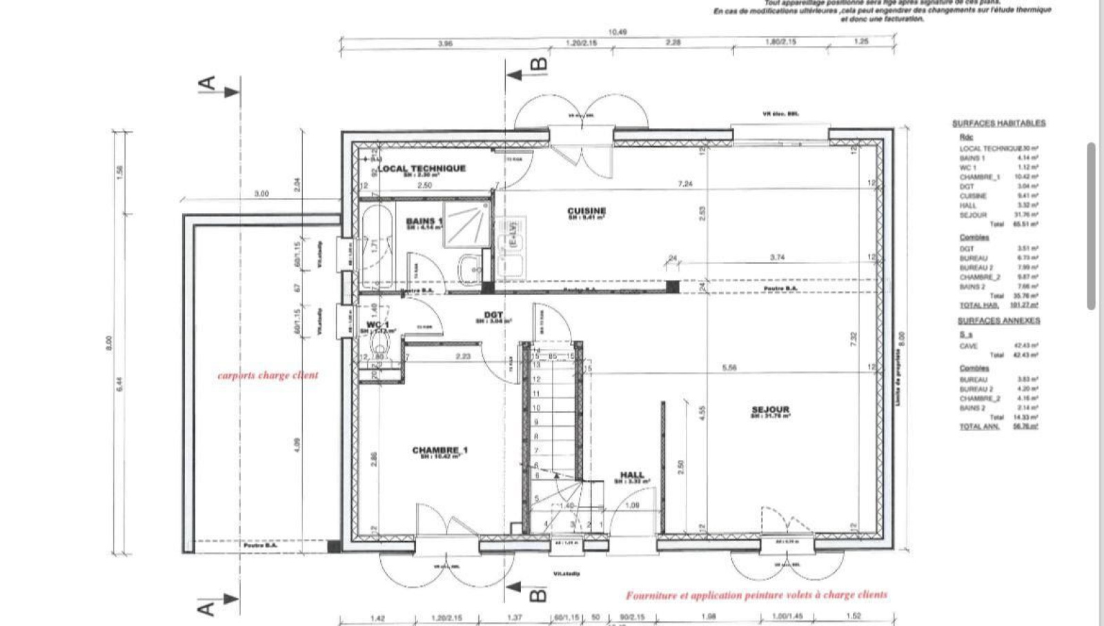
Rez-de-chaussée

  • chambre 1 10.42 m²
  • local technique 2.36 m²
  • wc suspendu 1.12 m²
  • salle de bain , baignoire et douche , meuble vasque à mettre 4.14 m²
  • cuisine à aménagée 9.41 m²
  • séjour salle à manger 31.76 m²
  • entree 3.33 m²

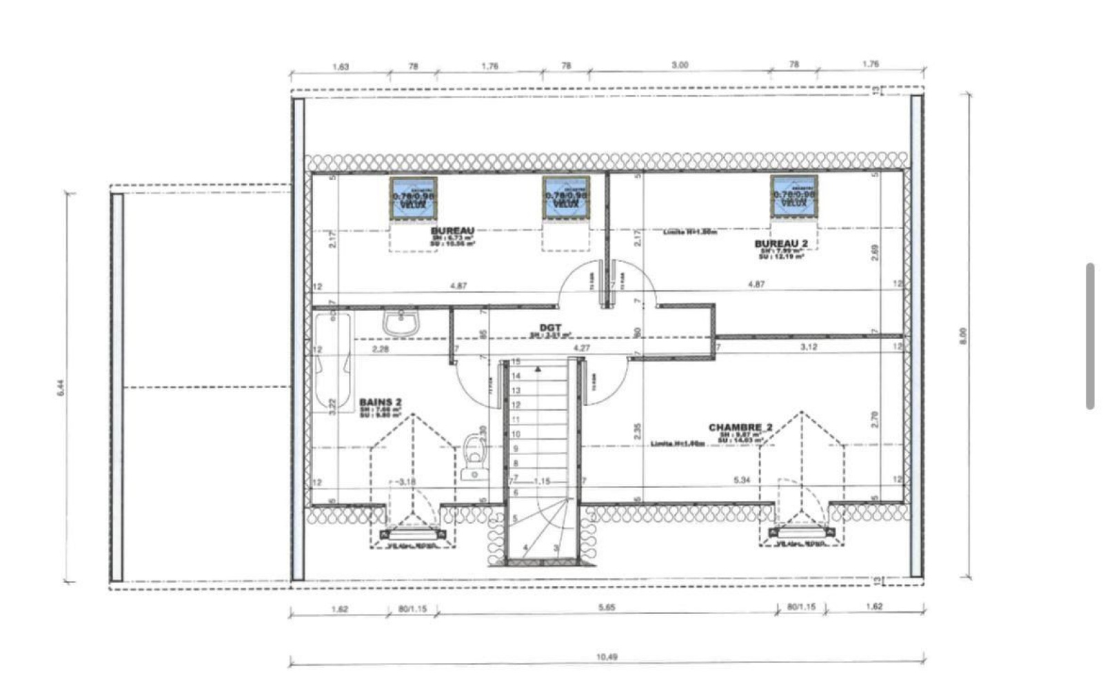
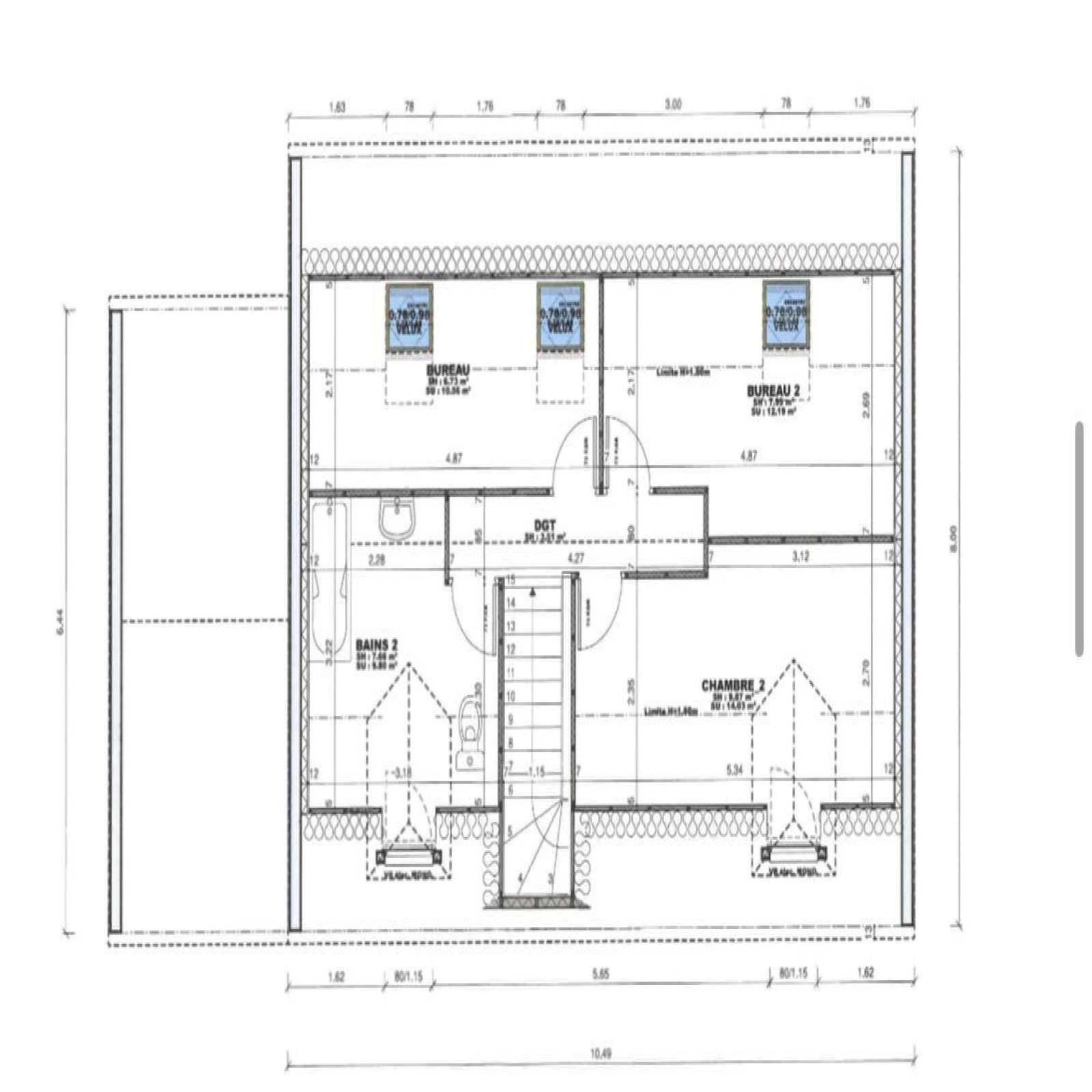
Etage 1

  • bureau 1 , 10.56 au sol 6.73 m²
  • chambre 2 14.03 au sol 9.87 m²
  • palier 2.51 m²
  • salle de bains avec baignoire , meuble vasque à installer , 9.80 au sol 7.64 m²
  • bureau 2 12.19 au sol 7.99 m²

Financier

Informations financières
Les honoraires d'agence seront intégralement à la charge du vendeur  

Simulation

Calcul des mensualités
* Champs obligatoires
Nathalie Crépin Négociatrice